<
>

DOUCHANGLEE, Metal House

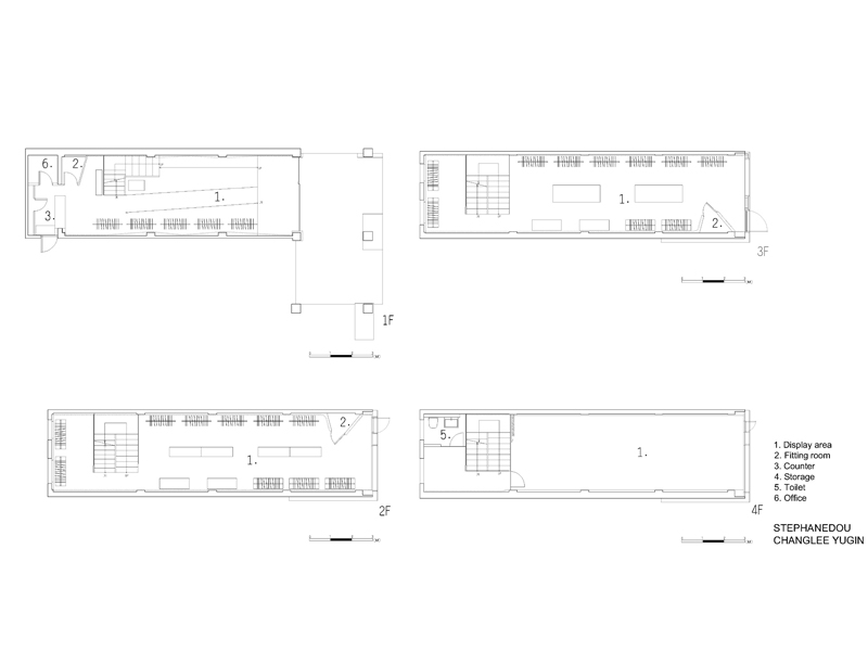
The "Metal House" concept was selected for the new four-storey development in Taichung City as it was in keeping with the local environment and resonated with the brand's avant-garde industrial image.

To highlight the avant-garde and raw industrial impression, galvanized steel floor slab reinforcements were used for the external façade, an unconventional touch. The ground floor space was treated as a transition between the building and the environment, with the pebble-surface used for the floor to introduce a local flavor. Through the ramp, two types of ascending and descending relationships were created, linking the interior with the external streetscape.

Metal casting provided the inspiration for the sculpted feel of the stairs providing access to the second floor, creating a dynamic system. Curved metallic panels were also used throughout the internal space to create irregular surfaces while heavy slide rails were added to the ceilings to homogenize the visual aesthetics of the overall space. Mirror surfaces were used for the foreground at each level and wrap around the wall that forms the interface with the outside world. The result is an overlap between the inside and outside that responds to the surrounding environment.

Category: Fashion Retail
Location: Taichung
Area: 225m²